Lot 207 - 16 Lingard Street

$725,000

3 Bedrooms 2 Bathrooms 1 x Garage

263 ㎡ Land 113 ㎡ Floor

Modern 3-Bedroom Duplex with Sunny North-Facing Living

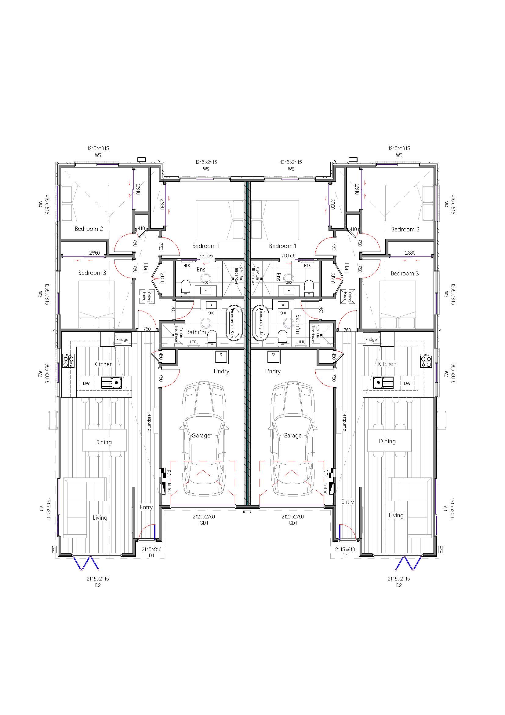
Floor Plan

This gable roof right side bevel back weatherboard and brick clad duplex home, realistically priced and comprising of all the elements you’d expect from a brand-new home, is set to be a serious contender for first home buyers, retirees, and professional couples.

A neutral interior has been assigned to instil a sense of space with north facing open plan lounge and dining room enjoying easy flow through bifolds to the sunny front deck. The contemporary kitchen features quality Bosch appliances including underbench oven, dishwasher, and canopy rangehood above a tiled back splash. Three carpeted double bedrooms all have built in closets with the master having an ensuite featuring tiled shower. The main bathroom has a free standing bath and the laundry is situated at the back of the garage which has internal access to the living area.

Call our Sales Manager Tal now for further information and the estimated completion date.

While this home is under construction, you’re welcome to visit our show home at 21 Evans Street, Morrinsville, open Sundays from 12pm to 2pm, excluding public holidays and long weekends. Tal will be there to talk you through the details and can also take you for a walk through to get a feel for the layout. Alternatively, you can arrange a time with him at tal@lockerbie.co.nz.

Choose your new home

Can’t quite find what you’re looking for?

Get in touch with our Sales Manager around our more customisable Design & Land Options.

Tal Weizman
Sales Manager
021 222 5501
tal@lockerbie.co.nz

EMAIL TAL