Lot 10 - 45 Lockerbie Street

$899,000

4 Bedrooms 2 Bathrooms 2 x Garage

506 ㎡ Land 183 ㎡ Floor

Space, Style & Sun - The Perfect Family Upgrade

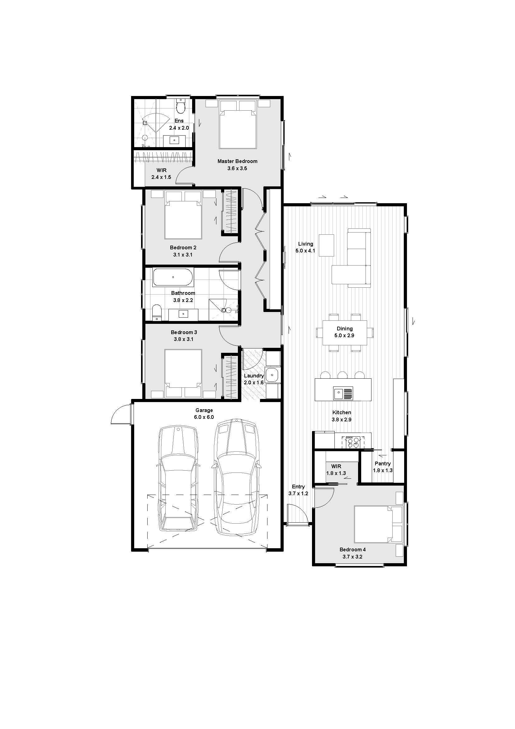
Floor Plan

For a growing family and those who want to entertain friends and relax in their own individual spaces, this single level four-bedroom brick and vertical shiplap weatherboard clad home is a winning combination of finesse and function.

An intelligent 183 sqm (approx.) floor plan integrates open plan lounge and dining area oriented to maximise sun and flow outdoors to a patio, fully fenced lawns and landscaped garden on a 506 sqm corner site. The high-quality kitchen with walk in pantry and island bench features Silestone benchtops and Melamine cabinetry along with the full suite of Bosch appliances. Four double bedrooms are well served with storage including master bedroom with walk-in wardrobe and tiled ensuite. There’s excellent storage throughout and a separate laundry is the conduit to internal access double garaging with forecourt parking.

From day one, you’ll feel right at home in this close-knit well-resourced community situated on the outskirts of Morrinsville.

This home is currently under contract. Contact Tal to learn about similar available homes or upcoming releases within Lockerbie Estate.

Choose your new home

Can’t quite find what you’re looking for?

Get in touch with our Sales Manager around our more customisable Design & Land Options.

Tal Weizman
Sales Manager
021 222 5501
tal@lockerbie.co.nz

EMAIL TAL